25×50 West Facing House Plan 3D Elevation Design 2000 Sqft
This premium 25×50 house plan west facing is a masterclass in urban space optimization. Engineered by SmartScale House Design, this project balances a compact 1,250 sq. ft. plot with a sprawling architectural layout, delivering a residence that exceeds 2,000 sq. ft. of total built-up area.
Design Philosophy: Neo-Modern Efficiency
The 25×50 house plan 3d elevation represents a “Neo-Modern” aesthetic, utilizing clean geometric lines and a sophisticated earth-tone palette. The architectural massing features a staggered first-floor extension, which provides structural shading for the entrance while maximizing the upper-level floor plate. This design ensures the home commands a strong street presence while maintaining functional interior volumes.
Core Project Specifications
-
Plot Dimensions: 25′ x 50′ (1,250 sq. ft. total land area).
-
Total Construction Area: ~2,152 sq. ft. (Inclusive of Ground, First, and Second slabs).
-
Orientation: West-Facing (Engineered for Vastu compliance and optimal airflow).
-
Vertical Clearance: 10’6″ floor-to-floor height for enhanced thermal comfort and luxury.
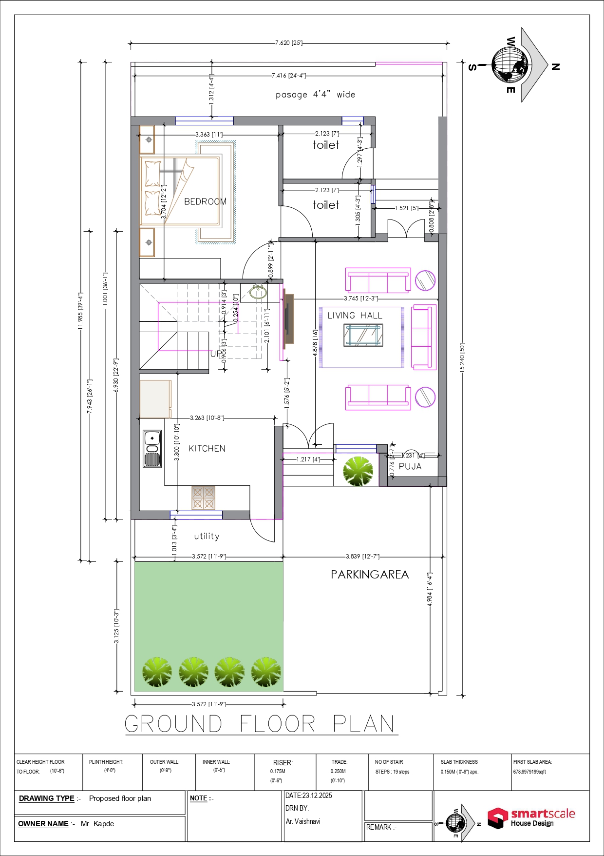
Ground Floor 25×50 House Plan: Utility & Social Integration
The ground level is strategically zoned to separate high-traffic utility areas from private living spaces:
-
Enhanced Parking Zone: A 12’7″ x 16’4″ area designed to accommodate a full-sized SUV alongside two-wheeler parking.
-
Formal Living Hall: A 12’3″ x 16’0″ space positioned to maximize natural light while maintaining a cool internal temperature.
-
Culinary & Spiritual Zone: A 10’8″ x 10’10” kitchen layout integrated with a South-East Vastu-compliant Puja room.
-
Rear Bedroom: A 11’0″ x 12’2″ suite situated at the back of the property to ensure acoustic privacy from the street.
First Floor: Executive Private Quarters
The upper level serves as a secluded sanctuary for the family:
-
Master Suite: An 11’0″ x 12’2″ bedroom featuring a private toilet and premium finishes.
-
Secondary Bedroom: A spacious 10’8″ x 12’10” room, versatile enough for use as a guest suite or a professional home office.
-
Family Lounge: A central 10’8″ x 10’10” sit-out area that facilitates vertical connectivity within the home.
-
Grand Frontage Balcony: A standout 24’4″ x 4’0″ terrace that defines the architectural character of the 25×50 house plan 3d facade.
Technical Engineering & Performance
SmartScale House Design prioritizes structural longevity and climate-responsive engineering:
-
Wall Construction: 9-inch external walls for superior thermal mass and insulation; 5-inch internal partition walls to optimize usable carpet area.
-
Ergonomic Circulation: A 19-step staircase engineered with a 6-inch riser and 10-inch tread for effortless vertical movement.
-
West-Facing Optimization: The 3D elevation incorporates recessed window placements to mitigate harsh afternoon solar gain, significantly reducing HVAC loads.
The SmartScale Advantage
This design is ideal for homeowners seeking a high-density, luxury aesthetic on a standard 25 x 50 plot. By utilizing open-plan zoning and strategic light wells, the design eliminates the “narrow-corridor” feel common in urban layouts.
Acquire the Full Architectural Set SmartScale House Design provides comprehensive documentation, including structural, electrical, and plumbing (MEP) layouts.





