30×45 North Facing House Plan with 3D Elevation Design and Floor Plan 1800 sqft
Elevate your lifestyle with this architecturally superior 30×45 house plan, specifically engineered for a north-facing plot. This comprehensive design package combines high-efficiency space planning with a breathtaking contemporary aesthetic, making it an ideal choice for modern families seeking a “Smartscale” living experience.
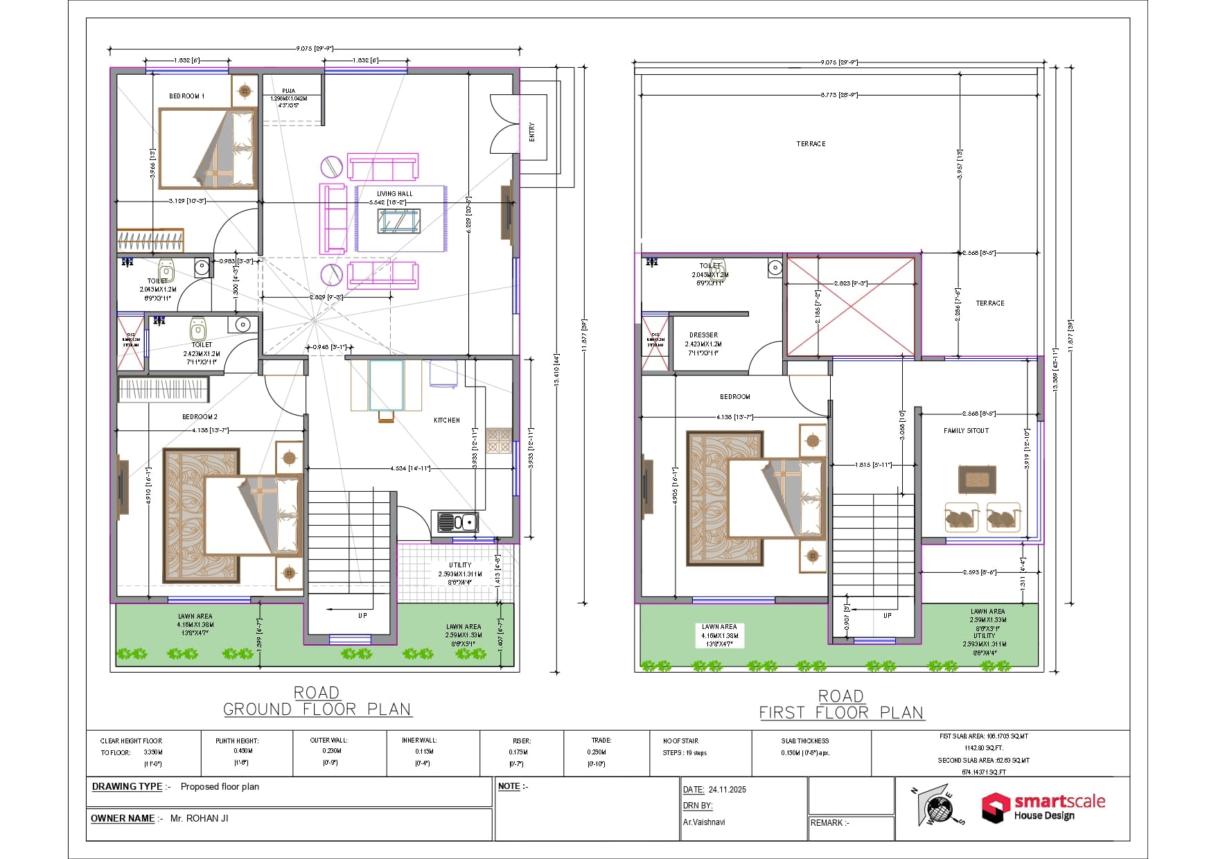
Optimized Specifications & Area Details
This 30×45 north facing house plan is meticulously calculated to maximize every square inch of your property:
-
Total Plot Size: 30′ x 45′ (Approx. 9.075M x 13.410M).
-
Ground Floor (First Slab): 1,142.80 SQ.FT (106.17 SQ.MT).
-
First Floor (Second Slab): 674.14 SQ.FT (62.63 SQ.MT).
-
Total Built-up Area: 1,816.94 SQ.FT of premium residential space.
-
Floor-to-Floor Height: A generous 11′ 4″ (3.350M) for enhanced airiness and luxury.
Ground Floor Layout: Seamless Connectivity
The ground floor is designed for high-traffic functionality and social engagement:
-
Grand Entry & Living Hall: A massive 18′ 2″ wide living area that serves as the heart of the home.
-
Dual Bedrooms: Features a primary bedroom (Bedroom 1) and a secondary bedroom (Bedroom 2) strategically placed for privacy.
-
Spiritual Space: Includes a dedicated Puja room positioned according to traditional layout principles.
-
Chef’s Kitchen & Utility: A spacious kitchen area complemented by a functional 8′ 6″ x 4′ 4″ external utility zone.
-
Front Lawn: A welcoming 13′ 8″ x 4′ 7″ green area that enhances the curb appeal.
First Floor Layout: Private Retreat & Leisure
The upper level focuses on relaxation and outdoor integration:
-
Family Sitout: A cozy indoor lounge area perfect for evening relaxation.
-
Dual Terraces: Expansive open-to-sky terrace spaces (North and South) offering panoramic views and ventilation.
-
Master Suite Features: The upper bedroom includes a dedicated Dresser (7′ 11″ x 3′ 11″) and attached Toilet for ultimate convenience.
Architectural 3D Elevation & Construction Notes
This 30×45 house plan 3D elevation design isn’t just about looks—it’s built for durability:
-
Wall Construction: Robust 9″ (0.230M) outer walls for thermal insulation and 4″ (0.115M) inner walls to maximize carpet area.
-
Premium Staircase Design: A 19-step internal staircase with a 7″ riser and 10″ tread for ergonomic climbing.
-
Modern Aesthetics: The elevation features sleek glass balconies, textured wall panels, and integrated planters as seen in the “Smartscale House Design” visual.
Why Choose This 30×45 House Plan?
-
Vastu Friendly: Designed specifically for North-facing plots to invite positive energy and light.
-
Ready-to-Construct: Includes all critical technical data from slab thickness (6″) to plinth height.
-
Indoor-Outdoor Balance: Over 1,800 sq. ft. of living space balanced with multiple lawns and terraces.
Whether you are looking for a 30×45 house plan and 3D design or a detailed blueprint for a north facing 30×45 house, this plan by Smartscale House Design provides the perfect roadmap for your dream home.
Love this 30×45 House Design? Contact Smartscale House Design to Customize it for Your Plot.
Plot Area: 1,816.94 sqft
Total builtup area : 1,816.94 sqft
Width: 30 ft
Length: 45 ft
Building Type: Residential
Related products
-
Dimension : 30 ft. x 45 ft.Area : 2000 SqftDuplex Floor PlanDirection :
30×45 House Plan West Facing 3D Elevation 2000 Sq Ft Luxury Duplex Design






